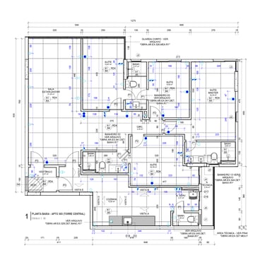
Residencial Multifamiliar Vitória, ES







Modelagem BIM e compatibilização de projetos complementares de um conjunto residencial composto por três torres, com área de lazer completa e 116 unidades habitacionais, totalizando aproximadamente 19.000 m² de área construída.
O escopo incluiu a elaboração do projeto executivo, com detalhamento dos apartamentos-tipo, áreas comuns, fachadas, piscinas, saunas e demais espaços coletivos. Também foram gerados quantitativos de materiais, especificações e acabamentos.
Serviço realizado em parceria com o escritório Magrini Arquitetura.
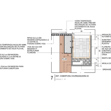
Residencial Multifamiliar Vitória, ES







Modelagem BIM e compatibilização de projetos complementares de um conjunto residencial composto por três torres, com área de lazer completa e 116 unidades habitacionais, totalizando aproximadamente 19.000 m² de área construída.
O escopo incluiu a elaboração do projeto executivo, com detalhamento dos apartamentos-tipo, áreas comuns, fachadas, piscinas, saunas e demais espaços coletivos. Também foram gerados quantitativos de materiais, especificações e acabamentos.
Serviço realizado em parceria com o escritório Magrini Arquitetura.

